Uw huis | Woning | Laatste in... | 705e1b49-050e-4b31-a730-6...

Laatste intapklare BEN-nieuwbouwwoning met 4 slaapkamers, bureau en garage

In een rustige en kindvriendelijke woonwijk in Haasdonk bieden wij de laatste beschikbare Nieuwbouwwoning binnen dit recente nieuwbouwproject.

De woning bevindt zich momenteel in de fase van binnenafwerking. In de prijs is een volledig ingerichte keuken en badkamer inbegrepen, wat deze woning meteen instapklaar maakt na oplevering.

Met een bewoonbare oppervlakte van ca. 240 m² geniet je hier van hedendaags wooncomfort, een slimme indeling en een hoogwaardige afwerking.

Indeling:
Het gelijkvloers omvat een open en lichtrijke leefruimte, een open keuken, een praktische berging, een bureauruimte en een ruime inpandige garage.

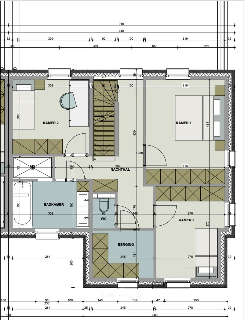
Op de eerste verdieping bevinden zich 3 ruime slaapkamers, een volledig ingerichte badkamer met plaats voor bad en douche, en een extra kamer die kan dienen als bureau of dressing.

Via de vaste trap bereik je de zolder, waar eenvoudig een 4de slaapkamer of polyvalente ruimte kan worden ingericht.

Troeven:
• Laatste beschikbare woning binnen het project
• BEN-woning – uiterst energiezuinig
• Binnenafwerking momenteel in uitvoering
• Volledig ingerichte keuken en badkamer inbegrepen
• Voorzieningen voor vloerverwarming, zonnepanelen en ventilatiesysteem D
• Aluminium ramen en regenwaterput
• Ruime tuin en inpandige garage
• Rustige ligging met vlotte verbinding naar E17, Beveren en Sint-Niklaas

Prijzen zijn exclusief btw en registratierechten.

?? Meer info of plannen ontvangen? Bel 052/46.38.03
?? Of mail naar info@uw-huis.be

Algemene info:
Gemeente 9120 Beveren
Referentie Cesaris Verschraegenstraat 12, 9120 Beveren
Type Woning
Type constructie Traditioneel
Verdiepingen 3
Bewoonbare opp. 242 m²
Perceeloppervlakte 369 m²
Breedte perceel 13m
Gevelbreedte 9 m
Toiletten 2
Bureau Ja
Zolder Ja
Comfort:
Conditie Instapklaar
Raamwerk Aluminium
Beglazing Dubbel,Hoogrendementsglas
Verwarming? Condensatieketel,Hoogrendementsketel
Warm water? Ja
Elektriciteit? Ja
Riolering? Ja
Water? Ja
Gas? Ja
Tuin Achtertuin
Orientatie tuin Oost
Garages 1
Type garage 1
Type parking Parkeerplaats
Afstand supermarkt 250m
Afstand restaurant 250m
Afstand recreatie 250m
Afstand snelweg 1750m
Afstand openbaar vervoer 250m
Afstand scholen 250m
Informatieplicht:
Stedenbouwkundige bestemming In aanvraag
Stedenbouwkundige vergunning Vergunning uitgereikt
Dagvaarding en herstelvordering Geen rechterlijke herstelmaatregel of bestuurlijke maatregel opgelegd
Voorkooprecht Voorkooprecht ruimtelijke ordening aanwezig
Verkavelingsvergunning Geen verkavelingsvergunning
Overstromingsgevoelig gebied Geen overstromingsgevoelig gebied
Afgebakende oeverzone Geen afgebakende zone
Overstromingskans perceel (P-score) A
Overstromingskans gebouw (G-score) A
Onroerend erfgoed Geen beschermd erfgoed

Vraag de dossierstukken op:

Wenst u de dossierstukken op te vragen van dit pand? Vul onderstaand formulier in.
Wanneer wij uw aanvraag hebben ontvangen zullen wij u de documenten bezorgen.

Prachtige ligging in Beveren

Interesse?
Maak een afspraak

Vindt u niet wat u zoekt?
Laat uw woonwensen achter.